
发布时间:2022-03-08点击数:

1、 标的名称:西关美食文化体验馆首层自编1A号、首层自编2号、首层自编3号、首层自编3A号、首层自编5号、首层自编6号,二层自编1号、二层自编2号、负一层自编1号招租
2、 所在地址:广州市荔湾区龙津西路98、100、102、104、106、108号西关美食文化体验馆。
3、 标的所在区域:广州荔湾区
4、 出租类别:房产
5、 出租用途:商业
6、 出租面积:
首层自编1A号:54.98 ㎡;首层自编2号:54.37 ㎡;首层自编3号:59.91 ㎡;首层自编3A号:34.93 m²;首层自编5号:36.16 m²;首层自编6号:363.54 m²;、二层自编1号:106.82 m²;二层自编2号:141.65 m²;负一层自编1号:178.29 m²。
备注:实用面积以双方现场实测为准。
7、 租赁期限/租期到期时间:6年
8、 免租期:首层自编1A号~5号商铺:30天免租期;首层自编6号、二层自编1号、二层自编2号商铺:45天免租期。负一层自编1号:面议。
9、 标的使用情况:空置
10、 特色:繁华商圈、一线街铺、交通便利
11、 挂牌价格:面议
12、 价格说明:面议,协商待定
13、 出租条件:优先选择从事非遗文化的企业或个体工商户。(其他类可协商面议)
14、 重大事项及其他披露内容:
1)物业交付标准:以物业现状交付;
2)竞价保证金:不设;
3)物业管理:物业承租人须与DB电竞(中国)官方网站 的下属经营公司(广州西关美食体验物业经营管理有限公司)签订物管合同;
4)承租人自行使用承租物业,依法经营,未经我司同意,不得整体转租或分租。
15、 承租方资格条件:
1)意向承租方必须为遵守中华人民共和国法律、法规、无重大违法、违纪行为,有效存续的法人或其他组织;
2)意向承租方须具有良好的信誉,重合同守信誉,守法经营,依法纳税,无重大消防、安全事故处罚记录;
3)意向承租方的承租行为必须符合国家现行法律、法规和政策规定。
16、 资产来源:国有企业房屋出租
17、 附件材料:无
18、 联系人:
出租方联系人/联系方式: 冯先生13922268024、刘小姐 15920451244
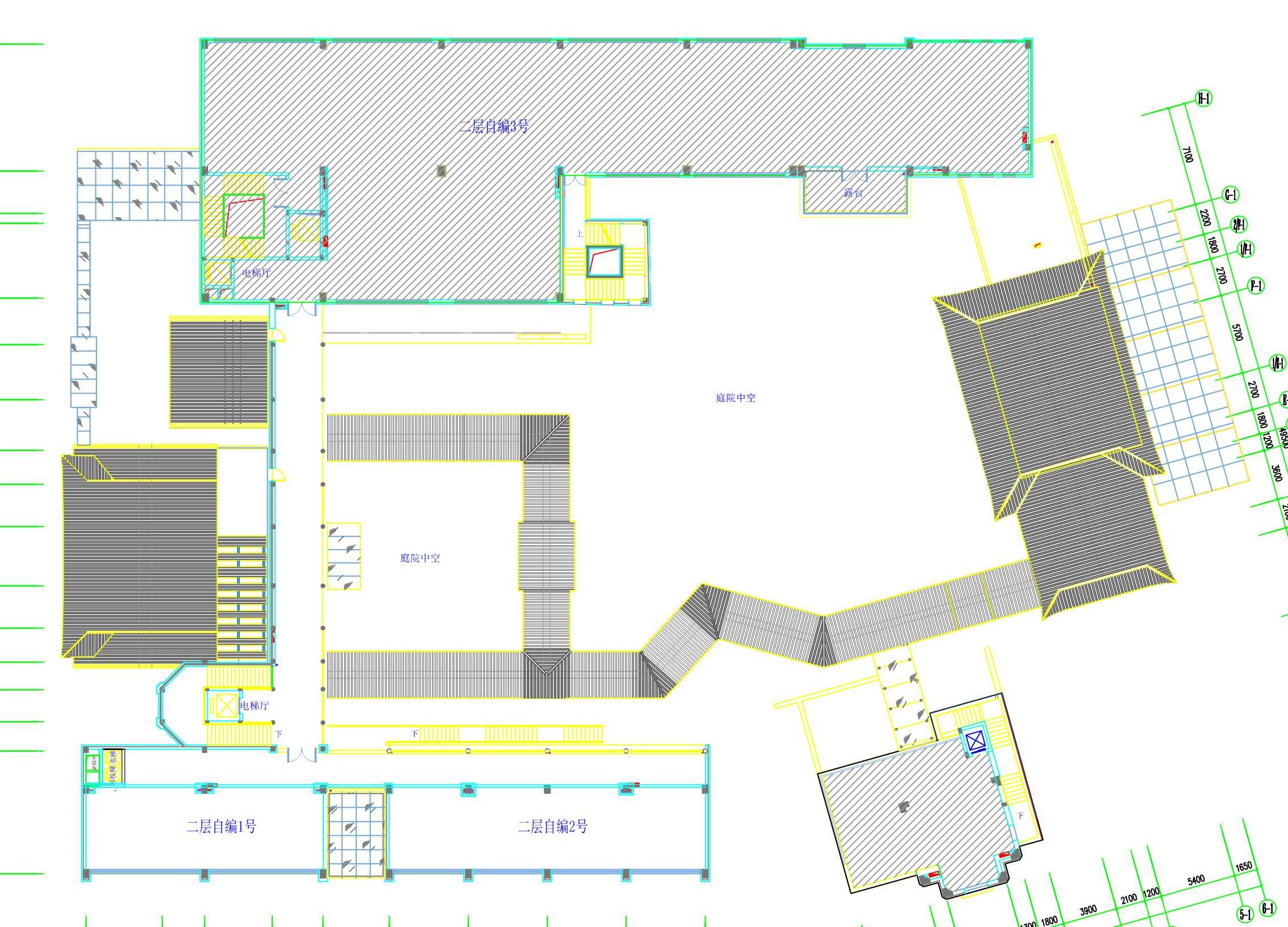
19、出租图片参考平面示意图:

首层平面图

二层平面图
20、报名信息详见广州公有物业出租平台链接如下:
1) 首层自编1A号:
//gzfc.gemas.com.cn/fang/detail.shtml?af02ad4c910a4dd4b8a0652ba5155ac2
2) 首层自编2号:
//gzfc.gemas.com.cn/fang/detail.shtml?98c62007a8194ffda661ba022bfd213d
3) 首层自编3号:
//gzfc.gemas.com.cn/fang/detail.shtml?7ca26306b51c48b59db7da81b8ecf512
4) 首层自编3A号:
//gzfc.gemas.com.cn/fang/detail.shtml?ff134dd1aea9449a91b9487cd319f9b4
5) 首层自编5号
//gzfc.gemas.com.cn/fang/detail.shtml?88fef63175f2409997ee5de37f04035b
6) 首层自编6号
//gzfc.gemas.com.cn/fang/detail.shtml?a0d6f53a4019413cb13972870978f44f
7) 二层自编1号
//gzfc.gemas.com.cn/fang/detail.shtml?f18123ae0df74b0f977d6eb16fc51024
8) 二层自编2号
//gzfc.gemas.com.cn/fang/detail.shtml?85f94ad8981c4de682b8cc0776fe9c4e
9)负一层自编1号
//gzfc.gemas.com.cn/fang/detail.shtml?d2d9b7bc9d374af2a1edc222d8f2321c