
发布时间:2022-01-11点击数:

1、 标的名称:西关生活体验馆首层自编1A号、首层自编2号、首层自编3号、首层自编3A号、首层自编5号、首层自编6号,二层自编1号、二层自编2号招租
2、 所在地址:广州市荔湾区龙津西路98、100、102、104、106、108号西关美食文化博物馆1-3层。
3、 标的所在区域:广州荔湾区
4、 出租类别:房产
5、 出租用途:商业
6、 出租面积:
首层自编1A号:44.18㎡;首层自编2号:51.65㎡;首层自编3号:60.23㎡;首层自编3A号:34.33m²;首层自编5号:34.83m²;首层自编6号:358.66m²(免租金提供负一层自编1号厨房(约200㎡)配套使用)、二层自编1号:99.65m²;二层自编2号:131.25m²。
备注:实用面积以双方现场实测为准。
7、 租赁期限/租期到期时间:6年
8、 免租期:首层自编1A号~5号商铺:30天免租期;首层自编6号、二层自编1号、二层自编2号商铺:45天免租期。
9、 标的使用情况:空置
10、 特色:繁华商圈、一线街铺、交通便利
11、 挂牌价格:面议
12、 价格说明:面议,协商待定
13、 出租条件:优先选择从事非遗文化的企业或个体工商户。(其他类可协商面议)
14、 重大事项及其他披露内容:
1)物业交付标准:以物业现状交付;
2)竞价保证金:不设;
3)物业管理:物业承租人须与DB电竞(中国)官方网站 的下属经营公司签订物管合同;(具体内容待确认)
4)承租人自行使用承租物业,依法经营,未经我司同意,不得整体转租或分租。
15、 承租方资格条件:
1)意向承租方必须为遵守中华人民共和国法律、法规、无重大违法、违纪行为,有效存续的法人或其他组织;
2)意向承租方须具有良好的信誉,重合同守信誉,守法经营,依法纳税,无重大消防、安全事故处罚记录;
3)意向承租方的承租行为必须符合国家现行法律、法规和政策规定。
16、 资产来源:国有企业房屋出租
17、 附件材料:无
18、 联系人:
出租方联系人/联系方式: 黄先生15818810452、刘小姐 15920451244
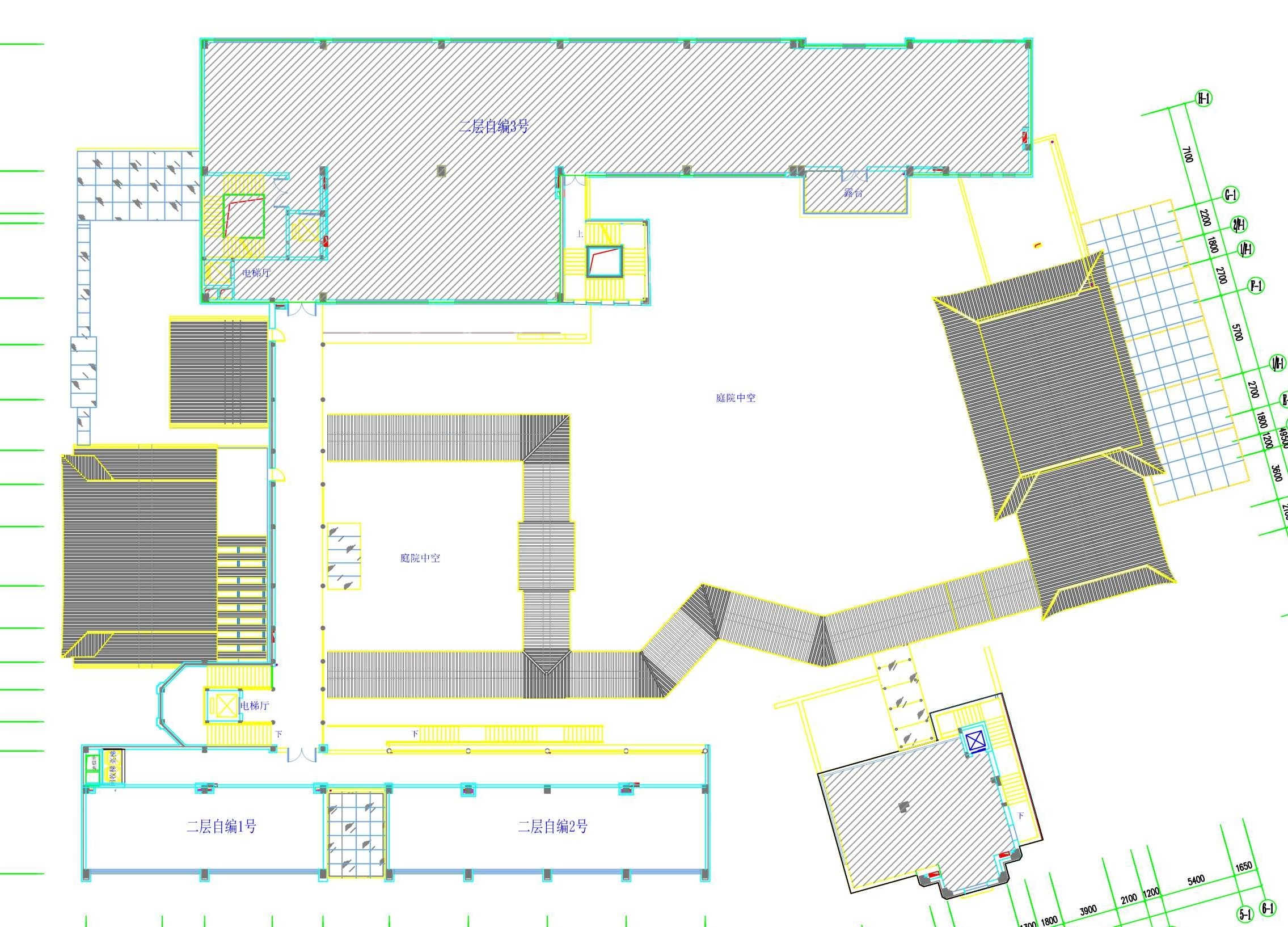
19、出租图片参考平面示意图:

首层平面图

二层平面图
20、报名信息详见广州公有物业出租平台链接如下:
1) 首层自编1A号:
//gzfc.gemas.com.cn/fang/detail.shtml?eb88bfcf888d467695032c8f0819b590
2) 首层自编2号:
//gzfc.gemas.com.cn/fang/detail.shtml?0545f344a72e4ceda1ae0081126fa95f
3) 首层自编3号:
//gzfc.gemas.com.cn/fang/detail.shtml?ed131ca57af34af084e1a29e0dfabfc1
4) 首层自编3A号:
//gzfc.gemas.com.cn/fang/detail.shtml?22206a55e11844048a57b8aeaab8881b
5) 首层自编5号
//gzfc.gemas.com.cn/fang/detail.shtml?468aecd07d3f4ad7a5e13252334104e2
6) 首层自编6号
//gzfc.gemas.com.cn/fang/detail.shtml?ee42e59710d546678de72549ea508be7
7) 二层自编1号
//gzfc.gemas.com.cn/fang/detail.shtml?3794317a0bc4405e81bb1f0251be35b0
8) 二层自编2号
//gzfc.gemas.com.cn/fang/detail.shtml?83e6a973fdd14172b7e606b1c26be3e6